קרומקופ - שירותי אדריכלות - נשמח לשיתוף פעולה

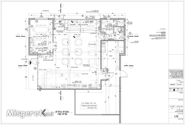
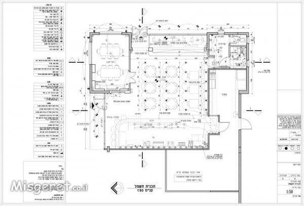
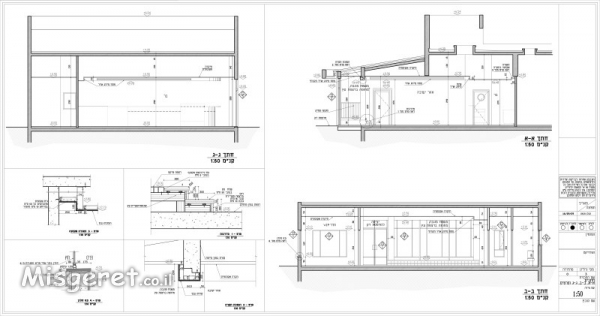
תכניות עבודה